Старт продаж
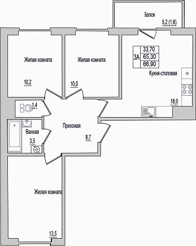
3-комнатная квартира, этаж 8, площадь 66,9 м²
Борисовичи, Псковский район, Псковская область, Героя России Досягаева, 7
Срок сдачи – IV кв. 2027
Продается 3-комнатная квартира №54 в строящемся доме по адресу Героя России Досягаева, 7.
Ипотека от 4%, старт продаж новостройки, сейчас самые низкие цены, платёж от 26 500 руб/мес
Вместо первоначального взноса вы можете использовать материнский капитал.
А также, мы снизили ставку базовой ипотеки и теперь она начинается от 16,7% вместо 21%. Благодаря этому, ваш ежемесячный платеж по ипотеке снижен!
ЖК «Семейный» - там, где удобно жить всей семьёй
А для семьи мы всегда выбираем лучшее.
Здесь всё создано для того, чтобы ваши будни были спокойными, а выходные наполнены радостью и отдыхом.
1. Надёжность и качество
Застройщик с богатым опытом и десятками реализованных проектов. ЖК «Семейный» - это продолжение популярного жилого квартала «Европа», который уже стал примером удачного сочетания стиля, технологий и комфорта.
Многие дома ЖК «Семейный» - панельные. Это наше собственное производство. У нас есть завод, который производит панели, которые мы используем в строительстве наших панельных домов. Мы контролируем каждый этап стройки и производства.
2. Жизнь в окружении удобств
Во дворах находятся современные детские площадки, зоны для спорта и отдыха. Вам не нужно беспокоиться за своих детей на улице, т.к. все детские площадки изолированы от зоны машин.
Наземная парковка продумана так, чтобы места хватило каждому. Она расположена по периметру всего дома. Рядом с паркой расположены прекрасные зеленые пешеходные дорожки, где вы всей семей сможете выгуливать своих пушистиков.
Внутри района уже работают супермаркеты, магазины, кафе и салоны красоты, есть детские развивающие центры и муниципальный детский сад.
В шаговой доступности новая школа, крупный торговый центр с кинотеатром и множество кафе для встреч с друзьями.
3. Выгодные условия покупки
На старте продаж действуют специальные цены, большая экономия благодаря сотрудничеству Застройщика с банками - партнерами. Дополнительно проект поддержан программами с господдержкой и выгодной ипотекой.
4. Планировки, в которых всё продумано
Каждый метр функционален: никаких «тёмных углов» и бесполезных коридоров. В каждой квартире есть удобное зонирование, чтобы у каждого члена семьи было своё пространство.
Для тех, кто ценит комфорт и разумный выбор.
ЖК «Семейный» сочетает в себе надёжность, доступность и заботу о каждой детали что бы каждому члену семьи было комфортно вплоть до любимых хвостиков. Квартира в этом доме - правильное решение для вашей семьи и комфорта ваших детей.
Если у вас есть ребёнок до 7 лет или двое несовершеннолетних детей до 18 лет, то вам доступна семейная ипотека от 4 %.
Если у вас нет детей или они достигли возраста 18 лет, то для вас доступна ипотека от 16,7%
Так же из условий у нас есть есть траншевая схема, где в первый год после покупки ваш платёж будет в два раза меньше (например, вместо 30к в месяц, вы будете платить всего 15к в месяц, позвоните нам, мы все расскажем).
Подойдёт маткапитал, военная ипотека, сертификаты для первого взноса.
Позвоните нам и наши менеджеры все объяснят.
Ипотека от 4%, старт продаж новостройки, сейчас самые низкие цены, платёж от 26 500 руб/мес
Вместо первоначального взноса вы можете использовать материнский капитал.
А также, мы снизили ставку базовой ипотеки и теперь она начинается от 16,7% вместо 21%. Благодаря этому, ваш ежемесячный платеж по ипотеке снижен!
ЖК «Семейный» - там, где удобно жить всей семьёй
А для семьи мы всегда выбираем лучшее.
Здесь всё создано для того, чтобы ваши будни были спокойными, а выходные наполнены радостью и отдыхом.
1. Надёжность и качество
Застройщик с богатым опытом и десятками реализованных проектов. ЖК «Семейный» - это продолжение популярного жилого квартала «Европа», который уже стал примером удачного сочетания стиля, технологий и комфорта.
Многие дома ЖК «Семейный» - панельные. Это наше собственное производство. У нас есть завод, который производит панели, которые мы используем в строительстве наших панельных домов. Мы контролируем каждый этап стройки и производства.
2. Жизнь в окружении удобств
Во дворах находятся современные детские площадки, зоны для спорта и отдыха. Вам не нужно беспокоиться за своих детей на улице, т.к. все детские площадки изолированы от зоны машин.
Наземная парковка продумана так, чтобы места хватило каждому. Она расположена по периметру всего дома. Рядом с паркой расположены прекрасные зеленые пешеходные дорожки, где вы всей семей сможете выгуливать своих пушистиков.
Внутри района уже работают супермаркеты, магазины, кафе и салоны красоты, есть детские развивающие центры и муниципальный детский сад.
В шаговой доступности новая школа, крупный торговый центр с кинотеатром и множество кафе для встреч с друзьями.
3. Выгодные условия покупки
На старте продаж действуют специальные цены, большая экономия благодаря сотрудничеству Застройщика с банками - партнерами. Дополнительно проект поддержан программами с господдержкой и выгодной ипотекой.
4. Планировки, в которых всё продумано
Каждый метр функционален: никаких «тёмных углов» и бесполезных коридоров. В каждой квартире есть удобное зонирование, чтобы у каждого члена семьи было своё пространство.
Для тех, кто ценит комфорт и разумный выбор.
ЖК «Семейный» сочетает в себе надёжность, доступность и заботу о каждой детали что бы каждому члену семьи было комфортно вплоть до любимых хвостиков. Квартира в этом доме - правильное решение для вашей семьи и комфорта ваших детей.
Если у вас есть ребёнок до 7 лет или двое несовершеннолетних детей до 18 лет, то вам доступна семейная ипотека от 4 %.
Если у вас нет детей или они достигли возраста 18 лет, то для вас доступна ипотека от 16,7%
Так же из условий у нас есть есть траншевая схема, где в первый год после покупки ваш платёж будет в два раза меньше (например, вместо 30к в месяц, вы будете платить всего 15к в месяц, позвоните нам, мы все расскажем).
Подойдёт маткапитал, военная ипотека, сертификаты для первого взноса.
Позвоните нам и наши менеджеры все объяснят.
Понравилась квартира? Поделитесь этим со знакомыми и близкими.
Отдел продаж