Базовая ипотека 5%
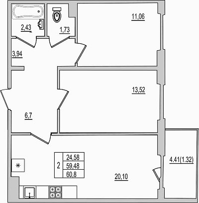
2-комнатная квартира, этаж 5, площадь 60,8 м²
Псков, Псковская область, Рижский проспект, 94Д
Срок сдачи – IV кв. 2027
Ипотека снижена с 22% до 5%. Ставка базовой ипотеки – от 5%
Ставка по семейной ипотеке – от 6%
Новостройка на Рижском пр, возле Fjord Plaza.
Продается 2-комнатная квартира №172 в строящемся доме на Рижском проспекте.
Почему «7 сезонов»?
«7 сезонов» — это семь домов, объединённых в единый жилой квартал со своими парками, дорожками, парковкой и атмосферой премиум – комфорта.
Это квартальная застройка формата «город в городе», где всё необходимое для жизни находится рядом: дома, дворы, прогулочные маршруты, детские и спортивные площадки.
Какие преимущества у этого квартала?
1. Улучшенные панели
Благодаря новым технологиям в квартирах тише, теплее и комфортнее, чем в стандартных домах. Стены держат тепло зимой и прохладу летом, а хорошая звукоизоляция позволяет отдыхать, даже если соседи любят шумные компании.
2. Панорамное остекление балконов в пол
Большие окна балкона наполняют квартиру естественным светом, визуально расширяют пространство и делают утреннее солнце, закаты и виды на Завеличье частью вашего уютного интерьера.
3. Продуманные планировки
Здесь нет бесполезных коридоров и «тёмных углов». Гардеробные вместо громоздких шкафов, изолированные спальни для уединения, просторные кухни-гостиные для общения всей семьи. Каждый метр работает на ваш комфорт.
4. Отделка на выбор
Можно сразу въехать в готовую квартиру «под ключ» или воплотить собственные дизайнерские идеи. Вы сами решаете, каким будет ваш дом.
Ваши преимущества
- Локация в сердце Завеличье с развитой инфраструктурой рядом с Лемана Про и Гипер Лентой
- Спорт и отдых у дома, салоны красоты, спортзалы, школы, садики – все внутри квартала.
- Панорамные окна и современные планировки
- Безопасные сделки через эскроу счет и персональное сопровождение менеджера
Квартира в ЖК «7 сезонов» - это ваш дом, который подстраивается под ваш сезон жизни: активный, семейный или спокойный.
Доступны все программы: базовая ипотека для всех – от 5%, семейная ипотека от 6%, военная ипотека, маткапитал, сертификаты переселения. Первоначальный взнос – от 20,1%
Позвоните нам, и наши менеджеры всё объяснят.
Ставка по семейной ипотеке – от 6%
Новостройка на Рижском пр, возле Fjord Plaza.
Продается 2-комнатная квартира №172 в строящемся доме на Рижском проспекте.
Почему «7 сезонов»?
«7 сезонов» — это семь домов, объединённых в единый жилой квартал со своими парками, дорожками, парковкой и атмосферой премиум – комфорта.
Это квартальная застройка формата «город в городе», где всё необходимое для жизни находится рядом: дома, дворы, прогулочные маршруты, детские и спортивные площадки.
Какие преимущества у этого квартала?
1. Улучшенные панели
Благодаря новым технологиям в квартирах тише, теплее и комфортнее, чем в стандартных домах. Стены держат тепло зимой и прохладу летом, а хорошая звукоизоляция позволяет отдыхать, даже если соседи любят шумные компании.
2. Панорамное остекление балконов в пол
Большие окна балкона наполняют квартиру естественным светом, визуально расширяют пространство и делают утреннее солнце, закаты и виды на Завеличье частью вашего уютного интерьера.
3. Продуманные планировки
Здесь нет бесполезных коридоров и «тёмных углов». Гардеробные вместо громоздких шкафов, изолированные спальни для уединения, просторные кухни-гостиные для общения всей семьи. Каждый метр работает на ваш комфорт.
4. Отделка на выбор
Можно сразу въехать в готовую квартиру «под ключ» или воплотить собственные дизайнерские идеи. Вы сами решаете, каким будет ваш дом.
Ваши преимущества
- Локация в сердце Завеличье с развитой инфраструктурой рядом с Лемана Про и Гипер Лентой
- Спорт и отдых у дома, салоны красоты, спортзалы, школы, садики – все внутри квартала.
- Панорамные окна и современные планировки
- Безопасные сделки через эскроу счет и персональное сопровождение менеджера
Квартира в ЖК «7 сезонов» - это ваш дом, который подстраивается под ваш сезон жизни: активный, семейный или спокойный.
Доступны все программы: базовая ипотека для всех – от 5%, семейная ипотека от 6%, военная ипотека, маткапитал, сертификаты переселения. Первоначальный взнос – от 20,1%
Позвоните нам, и наши менеджеры всё объяснят.
Понравилась квартира? Поделитесь этим со знакомыми и близкими.
Отдел продаж