Базовая ипотека 5%
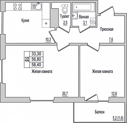
2-комнатная квартира, этаж 1, площадь 58,4 м²
Псков, Псковская область, Юности, 10
Выдача ключей – 01.10.2027
Ипотека снижена с 22% до 5%. Ставка базовой ипотеки – от 5%
Ставка по семейной ипотеке – от 6%
Строящийся дом в районе Запсковья, недалеко от ГиперЛенты.
Продается 2-комнатная квартира №142 в строящемся доме по адресу Юности, 10.
Квартира в строящемся доме по адресу ул. Юности, 10 - это функциональное пространство, где каждый метр работает на комфорт. Идеальный старт для новой жизни.
Юности 10 – это дом в ЖК «СМАРТ», где все квартиры – умные.
ЖК "СМАРТ" не зря получил своё название. Здесь используются умные планировки.
Это значит, что каждый метр квартиры используется с пользой:
- кухня удобно размещается и не «съедает» всё пространство;
- остаётся полноценная зона отдыха или спальни;
- предусмотрены места для хранения, чтобы не заставлять квартиру шкафами;
- комнаты легко обставить мебелью без неудобных углов и узких проходов.
В результате квартира кажется более просторной и удобной для жизни, при любой площади.
Локация "СМАРТ"
Жилой комплекс расположен в уютном районе с развитой инфраструктурой: рядом школы, детские сады, магазины, торговые центры, остановки транспорта. Всё необходимое рядом с домом. Дом находится в 15 минутах от Гипер Ленты на Труда 54.
У вас есть:
- Возможность купить квартиру с готовой отделкой или без неё.
- Прямая работа с застройщиком с использованием эскроу счетов, т.е. для вас - это безопасные расчёты и сопровождение сделки персональным менеджером вплоть до получения ключей.
СМАРТ оправдывает своё название: здесь всё продумано, чтобы вы чувствовали себя дома с первого дня.
Ставка базовой ипотеки – от 5%, семейная ипотека 6%, военная ипотека, маткапитал, сертификаты переселения. Первоначальный взнос – от 20,1%
Позвоните нам, и наши менеджеры всё объяснят.
Ставка по семейной ипотеке – от 6%
Строящийся дом в районе Запсковья, недалеко от ГиперЛенты.
Продается 2-комнатная квартира №142 в строящемся доме по адресу Юности, 10.
Квартира в строящемся доме по адресу ул. Юности, 10 - это функциональное пространство, где каждый метр работает на комфорт. Идеальный старт для новой жизни.
Юности 10 – это дом в ЖК «СМАРТ», где все квартиры – умные.
ЖК "СМАРТ" не зря получил своё название. Здесь используются умные планировки.
Это значит, что каждый метр квартиры используется с пользой:
- кухня удобно размещается и не «съедает» всё пространство;
- остаётся полноценная зона отдыха или спальни;
- предусмотрены места для хранения, чтобы не заставлять квартиру шкафами;
- комнаты легко обставить мебелью без неудобных углов и узких проходов.
В результате квартира кажется более просторной и удобной для жизни, при любой площади.
Локация "СМАРТ"
Жилой комплекс расположен в уютном районе с развитой инфраструктурой: рядом школы, детские сады, магазины, торговые центры, остановки транспорта. Всё необходимое рядом с домом. Дом находится в 15 минутах от Гипер Ленты на Труда 54.
У вас есть:
- Возможность купить квартиру с готовой отделкой или без неё.
- Прямая работа с застройщиком с использованием эскроу счетов, т.е. для вас - это безопасные расчёты и сопровождение сделки персональным менеджером вплоть до получения ключей.
СМАРТ оправдывает своё название: здесь всё продумано, чтобы вы чувствовали себя дома с первого дня.
Ставка базовой ипотеки – от 5%, семейная ипотека 6%, военная ипотека, маткапитал, сертификаты переселения. Первоначальный взнос – от 20,1%
Позвоните нам, и наши менеджеры всё объяснят.
Понравилась квартира? Поделитесь этим со знакомыми и близкими.
Свяжитесь с нами
Отдел продаж