Дом готовится к сдаче
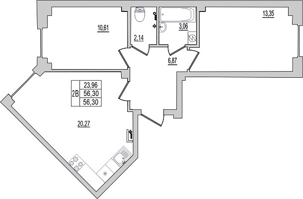
2-к. квартира, 56.3 м², 1/10 эт.
Псков, Запсковье, Псковская область, Линейная, 87
Срок сдачи – I кв. 2026
Продается 2-комнатная квартира №101 в строящемся доме на ул. Линейная, 87.Дом сдается уже в декабре, ипотека от 6%, первоначальный взнос от 650 000 руб
Уже в декабре вы сможете въехать в абсолютно новый дом и начать новый год в новой квартире. Дом сдается и вводится в эксплуатацию уже в декабре 2025 года, успейте забрать самые счастливые квартиры для жизни в новом году.
Новая квартира - это новая глава жизни.
И мы сделали всё, чтобы она была комфортной, современной и выгодной.
ЖК «SMART» - когда каждый метр работает на вас.
Жить удобно каждый день: утром вы ведёте ребёнка в новый детский сад прямо у дома, по пути заглядываете в супермаркет, а вечером всей семьёй гуляете в строящемся парке.
Банки, аптеки, кафе, медицинский центр - всё рядом, без поездок через весь город.
Жить в «SMART» значит экономить время каждый день:
- рядом гипермаркет «Лента» на Труда, 54,
- современные фитнес-залы и клубы,
- салоны красоты и студии ухода,
- аптеки, медицинские центры и стоматология,
- уютные кафе и магазины на каждый день.
А самое приятное то, что район остаётся тихим и спокойным, без городской суеты, но с полной инфраструктурой под рукой.
Почему выбор ЖК «SMART» это умный выбор:
- Планировки, которые экономят деньги и метры: вы не платите за пустые коридоры.
- Район с готовой инфраструктурой: школа, сады, магазины, спорт, отдых.
- Просторные дворы с детскими и спортивными площадками: дети на виду, а не на проезжей части.
- Безопасные сделки через эскроу счет и надёжный застройщик, который давно на рынке.
SMART - это не просто название. Это квартал, где жизнь становится действительно удобнее за счет умных решений: всё рядом, всё продумано, всё для вас.
Доступны варианты квартир без отделки, что бы вы могли сами проявить творчество и сделать квартиру с нуля под себя и свой вкус.
Так же доступны квартиры с отделкой, когда не хочется тратить время на разные решения, а хочется просто сразу занести мебель и начать жить.
Если у вас есть ребёнок до 7 лет или двое несовершеннолетних детей до 18 лет, то вам доступна семейная ипотека от 6 %.
Если у вас нет детей или они достигли возраста 18 лет, то для вас доступна ипотека от 16,7%
Так же из условий у нас есть есть траншевая схема, где в первый год после покупки ваш платёж будет в два раза меньше (например, вместо 30к в месяц, вы будете платить всего 15к в месяц, позвоните нам, мы все расскажем).
Подойдёт маткапитал, военная ипотека, сертификаты для первого взноса.
Так же предусмотрена рассрочка до 3 месяцев.
Уже в декабре вы сможете въехать в абсолютно новый дом и начать новый год в новой квартире. Дом сдается и вводится в эксплуатацию уже в декабре 2025 года, успейте забрать самые счастливые квартиры для жизни в новом году.
Новая квартира - это новая глава жизни.
И мы сделали всё, чтобы она была комфортной, современной и выгодной.
ЖК «SMART» - когда каждый метр работает на вас.
Жить удобно каждый день: утром вы ведёте ребёнка в новый детский сад прямо у дома, по пути заглядываете в супермаркет, а вечером всей семьёй гуляете в строящемся парке.
Банки, аптеки, кафе, медицинский центр - всё рядом, без поездок через весь город.
Жить в «SMART» значит экономить время каждый день:
- рядом гипермаркет «Лента» на Труда, 54,
- современные фитнес-залы и клубы,
- салоны красоты и студии ухода,
- аптеки, медицинские центры и стоматология,
- уютные кафе и магазины на каждый день.
А самое приятное то, что район остаётся тихим и спокойным, без городской суеты, но с полной инфраструктурой под рукой.
Почему выбор ЖК «SMART» это умный выбор:
- Планировки, которые экономят деньги и метры: вы не платите за пустые коридоры.
- Район с готовой инфраструктурой: школа, сады, магазины, спорт, отдых.
- Просторные дворы с детскими и спортивными площадками: дети на виду, а не на проезжей части.
- Безопасные сделки через эскроу счет и надёжный застройщик, который давно на рынке.
SMART - это не просто название. Это квартал, где жизнь становится действительно удобнее за счет умных решений: всё рядом, всё продумано, всё для вас.
Доступны варианты квартир без отделки, что бы вы могли сами проявить творчество и сделать квартиру с нуля под себя и свой вкус.
Так же доступны квартиры с отделкой, когда не хочется тратить время на разные решения, а хочется просто сразу занести мебель и начать жить.
Если у вас есть ребёнок до 7 лет или двое несовершеннолетних детей до 18 лет, то вам доступна семейная ипотека от 6 %.
Если у вас нет детей или они достигли возраста 18 лет, то для вас доступна ипотека от 16,7%
Так же из условий у нас есть есть траншевая схема, где в первый год после покупки ваш платёж будет в два раза меньше (например, вместо 30к в месяц, вы будете платить всего 15к в месяц, позвоните нам, мы все расскажем).
Подойдёт маткапитал, военная ипотека, сертификаты для первого взноса.
Так же предусмотрена рассрочка до 3 месяцев.
Понравилась квартира? Поделитесь этим со знакомыми и близкими.
Отдел продаж