Старт продаж
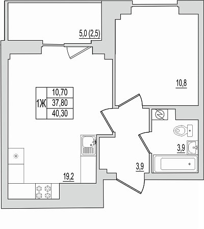
1-комнатная квартира, этаж 3, площадь 40,3 м²
Псков, Псковская область, Инженерная, 106А
Выдача ключей – 30.06.2028
Продается 1-комнатная квартира №64 в жилом комплексе Новая фамилия на Инженерной, 106А.
Локация в сердце Запсковья, качество решений и продуманная среда формируют высокий уровень жизни.
Дома построены по кирпично-монолитной технологии, обеспечивающей высокий уровень надежности и комфорта.
Сдержанная архитектура и цельное пространство создают ощущение статуса, которое проявляется в каждой детали.
Преимущества ЖК «Новая фамилия»:
● центральная часть Запсковья — сформированный район с устойчивой инфраструктурой
● удобные выезды и транспортная доступность
● сбалансированная застройка без перегруженности территории
● квартальная застройка из четырех домов
● повседневные маршруты — в шаговой доступности
● прекрасные виды на восходы, закаты и Псковский Кремль
Дома и решения:
● современные технологии строительства с повышенной тепло- и шумоизоляцией
● функциональные планировки без лишних метров
● продуманное зонирование квартир
● панорамное остекление балконов с тонировкой
● современные подъезды со сдержанной архитектурой и аккуратной отделкой
Инфраструктура:
● супермаркеты и магазины рядом
● школы и детские сады в районе
● медицинские центры и аптеки
● кафе и повседневные сервисы
● в 5 минутах - Гипер Лента на Труда 54
Локация:
Центр Запсковья — район с уже сложившейся городской средой и полной инфраструктурой для жизни.
Локация в сердце Запсковья, качество решений и продуманная среда формируют высокий уровень жизни.
Дома построены по кирпично-монолитной технологии, обеспечивающей высокий уровень надежности и комфорта.
Сдержанная архитектура и цельное пространство создают ощущение статуса, которое проявляется в каждой детали.
Преимущества ЖК «Новая фамилия»:
● центральная часть Запсковья — сформированный район с устойчивой инфраструктурой
● удобные выезды и транспортная доступность
● сбалансированная застройка без перегруженности территории
● квартальная застройка из четырех домов
● повседневные маршруты — в шаговой доступности
● прекрасные виды на восходы, закаты и Псковский Кремль
Дома и решения:
● современные технологии строительства с повышенной тепло- и шумоизоляцией
● функциональные планировки без лишних метров
● продуманное зонирование квартир
● панорамное остекление балконов с тонировкой
● современные подъезды со сдержанной архитектурой и аккуратной отделкой
Инфраструктура:
● супермаркеты и магазины рядом
● школы и детские сады в районе
● медицинские центры и аптеки
● кафе и повседневные сервисы
● в 5 минутах - Гипер Лента на Труда 54
Локация:
Центр Запсковья — район с уже сложившейся городской средой и полной инфраструктурой для жизни.
Понравилась квартира? Поделитесь этим со знакомыми и близкими.
Свяжитесь с нами
Отдел продаж