Идёт облицовка кирпичом
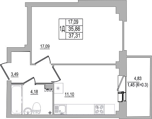
Квартира, этаж 2, площадь 37.31м²
Псков, Запсковье, Псковская область, Юности, 32
Срок сдачи – IV кв. 2026
Ипотека от 6%, первоначальный взнос от 582 000 руб; планировки, где каждый метр с пользой
Продается 1-комнатная квартира №59 в строящемся доме на ул. Юности, 32 (2 этап строительства).
Юности, 32 - умные квартиры в ЖК «SMART»
Кирпично-монолитный дом переменной этажности в жилом комплексе «SMART».
Название квартала говорит само за себя - здесь продуманы и планировки, и окружение, чтобы жить было удобно каждый день.
Квартиры спроектированы так, чтобы каждый метр работал на вас:
1. Изолированные комнаты дают личное пространство каждому члену семьи.
2. Кухни правильной формы легко зонировать: под гарнитуры, обеденную группу или уютное место для встреч.
3. Раздельные санузлы в большинстве планировок.
4. Лоджии - дополнительное пространство для хранения, отдыха или кабинета.
5. Геометрия помещений удобна для расстановки мебели - ни одного бесполезного метра.
Выбирайте: готовая отделка и можно заезжать сразу и заносить свою мебель, или свободное пространство для собственного дизайна без отделки.
Жизнь в «SMART»
Район сочетает развитую инфраструктуру и домашний уют:
- школа и детский сад рядом,
- магазины, гипермаркет и торговые центры в шаговой доступности,
- удобное транспортное сообщение во все части города.
Полное сопровождение сделки до получения ключей персональным менеджером.
SMART - это квартиры, которые подстраиваются под вас, а не наоборот.
Если у вас есть ребёнок до 6 лет или двое несовершеннолетних, то вам доступна семейная ипотека от 6 %.
Если у вас нет детей или они достигли возраста 18 лет, то для вас доступна ипотека от 16,7%
Так же из условий у нас есть есть траншевая схема, где первый год платёж в два раза меньше (позвоните нам, мы все расскажем).
Подойдёт маткапитал, военная ипотека, сертификаты переселения.
Так же предусмотрена рассрочка до 3 месяцев.
Продается 1-комнатная квартира №59 в строящемся доме на ул. Юности, 32 (2 этап строительства).
Юности, 32 - умные квартиры в ЖК «SMART»
Кирпично-монолитный дом переменной этажности в жилом комплексе «SMART».
Название квартала говорит само за себя - здесь продуманы и планировки, и окружение, чтобы жить было удобно каждый день.
Квартиры спроектированы так, чтобы каждый метр работал на вас:
1. Изолированные комнаты дают личное пространство каждому члену семьи.
2. Кухни правильной формы легко зонировать: под гарнитуры, обеденную группу или уютное место для встреч.
3. Раздельные санузлы в большинстве планировок.
4. Лоджии - дополнительное пространство для хранения, отдыха или кабинета.
5. Геометрия помещений удобна для расстановки мебели - ни одного бесполезного метра.
Выбирайте: готовая отделка и можно заезжать сразу и заносить свою мебель, или свободное пространство для собственного дизайна без отделки.
Жизнь в «SMART»
Район сочетает развитую инфраструктуру и домашний уют:
- школа и детский сад рядом,
- магазины, гипермаркет и торговые центры в шаговой доступности,
- удобное транспортное сообщение во все части города.
Полное сопровождение сделки до получения ключей персональным менеджером.
SMART - это квартиры, которые подстраиваются под вас, а не наоборот.
Если у вас есть ребёнок до 6 лет или двое несовершеннолетних, то вам доступна семейная ипотека от 6 %.
Если у вас нет детей или они достигли возраста 18 лет, то для вас доступна ипотека от 16,7%
Так же из условий у нас есть есть траншевая схема, где первый год платёж в два раза меньше (позвоните нам, мы все расскажем).
Подойдёт маткапитал, военная ипотека, сертификаты переселения.
Так же предусмотрена рассрочка до 3 месяцев.
Понравилась квартира? Поделитесь этим со знакомыми и близкими.
Отдел продаж